5
5
4553
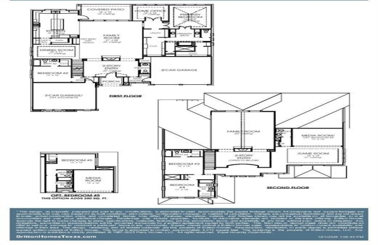
Property Description: Two-story entry with 20-foot ceilings. Family room with a fireplace facing the entry and sliding glass doors. Kitchen features a large island, a large walk-in pantry and a Butler's pantry. Formal dining room. Home office with French doors. Primary suite features 14-foot ceilings. Double doors lead to primary bath with dual vanities, a freestanding tub, glass-enclosed shower, and two walk-in closets. Second level features a media room and a game room. Covered backyard patio. Split four-car garage.