4
2
1703
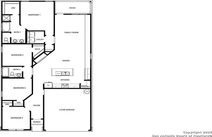
Property Description: The Bryant is a stunning single-story home featured at Langdon in San Antonio, TX. The Bryant is sure to impress with its selection of 3 front exteriors, 4 bedrooms, 2 bathrooms and 2-car garage. Welcome guests as they walk through the elongated foyer with a decorative nook wall feature to the spacious eat-in kitchen. Facing the blended dining area and living room, the kitchen includes an oversized island, corner pantry with shelving, plenty of cabinet storage, quartz countertops, stylish subway tile backsplash, stainless steel appliances, and a gas cooking range. The private main bedroom is located at the back of the house and features a relaxing ensuite bathroom complete with double vanities, a garden tub, walk-in shower, and a spacious walk-in closet. If privacy is your top priority, this bathroom comes standard with a separate water closet. Two secondary bedrooms are located off the entry and the other is centrally located off the kitchen. All have quality carpet, spacious closets and windows for plenty of natural lighting. Whether these rooms become bedrooms or other bonus spaces, there is sure to be comfort and functionality. Additional features include tall 9-foot ceilings, 2-inch faux wood blinds throughout the home, luxury vinyl plank flooring in the entry, family room, kitchen, and dining area, ceramic tile in the bathrooms and utility room, and pre-plumb for water softener loop. Relax outside on a covered patio (per plan) located off the family room and enjoy full yard landscaping and full yard irrigation. You'll enjoy added security in your new home with our Home is Connected features. Using one central hub that talks to all the devices in your home, you can control the lights, thermostat and locks, all from your cellular device.