10117 Amalgam Street Aubrey, Texas 76227 Listing ID 21186310
4
2
2404
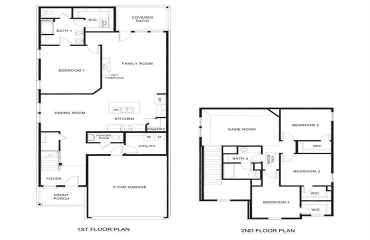
Property Description: New Construction by DR Horton this beautiful 2 story home offers 4 Bedrooms, 2.5 Bathrooms, Gameroom, 2 Car Garage, and Covered Patio. Energy efficient with smart home features included.