4
3
1967
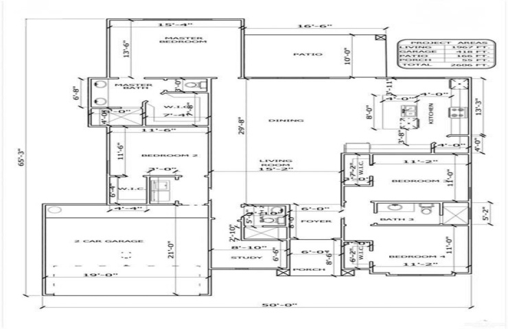
Property Description: Beautiful upcoming new construction in San Juan, Texas, located in the desirable Plantation Heights subdivision. This thoughtfully designed home offers four bedrooms, three full bathrooms, and a dedicated office space-perfect for remote work and today's flexible lifestyle. Designed with an open-concept layout, the home features a seamless flow between the living, dining, and kitchen areas. The kitchen showcases quartz countertops and a large center island with cooktop, creating a functional and inviting space. The primary suite includes a spacious walk-in closet and a well-appointed bathroom. Additional highlights include an interior laundry room, double attached garage, welcoming front porch, and a covered back patio ideal for relaxing. A must-see property-schedule your viewing today.