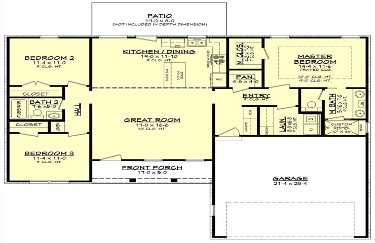
3
2
1518
Property Description: VERY EARLY STAGES!!! New construction 3-bedroom, 2-bath home offering a bright, open-concept design perfect for modern living. The split-bedroom floor plan provides privacy and functionality, with a spacious primary suite separate from the secondary bedrooms. The stylish island kitchen features stainless steel appliances, ample cabinetry, and a layout ideal for entertaining. Tall ceilings enhance the open, airy feel, while durable vinyl plank flooring runs throughout for a clean, cohesive look. Enjoy the convenience of city utilities and the benefit of being located in Hudson ISD. This move-in-ready home blends comfort, style, and efficiency—perfect for first-time buyers, downsizers, or anyone seeking quality new construction in a great location. **See in person, changes will be made to the floor plan and the home front sketch**