4
2
1764
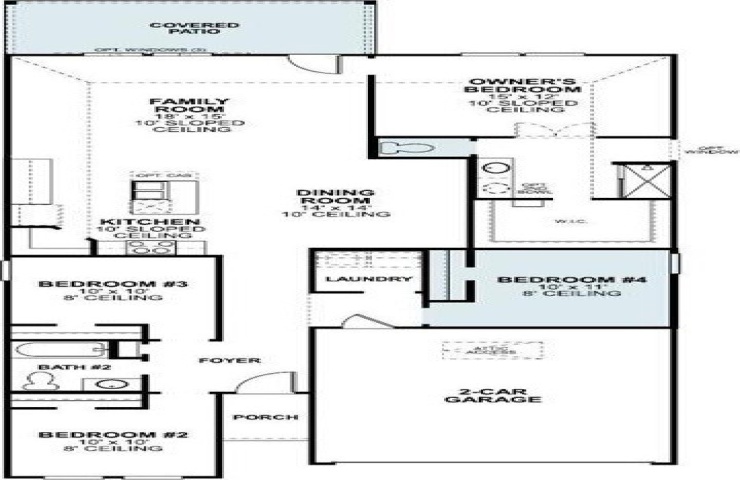
Property Description: Built by MI Homes. This new construction home at 1160 Greenlee Drive offersa thoughtfully designed living space. Built by MI Homes, this 4-bedroom, 2-bathroom home features an owner's bedroom conveniently located on the main floor. Key Features: An Open-concept living space that creates seamless flow between main living areas 4 spacious bedrooms that provide flexible options for family needs 2 full bathrooms designed for daily convenience A covered patio The home showcases quality design elements throughout, with attention to both functionality and comfort. The open-concept layout connects the kitchen, dining, and living areas, making it ideal for both daily living and entertaining guests. The Crowley neighborhood offers excellent access to local parks, providing outdoor recreation opportunities just minutes from your front door. This established community combines suburban tranquility with convenient access to area amenities. As a new construction home, you'll enjoy the peace of mind that comes with modern building standards and warranty coverage. The single-story floorplan eliminates stairs, offering accessibility and ease of movement throughout the home. This MI Homes construction represents an opportunity to be the first owner of a thoughtfully designed home in a desirable Crowley location. The combination of quality construction, functional design, and neighborhood amenities makes this an attractive option for today's homebuyers. Schedule a visit today!