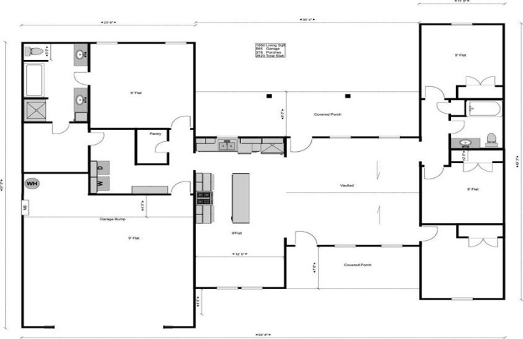
Property Description: Welcome to this beautifully crafted new construction home that blends style, comfort, and efficiency. This 3 bedroom, 2 bathroom home also features a dedicated office, perfect for working from home, studying, or creating a quiet retreat. Inside, you’ll find high end finishes throughout, including granite countertops, vinyl plank flooring, and energy efficient LED lighting. Spray foam insulation helps keep utility costs down while maintaining year round comfort. The main living area has vaulted ceilings that add an open, airy feel that makes the space feel even larger and more inviting. The spacious 2 car garage offers plenty of room for vehicles and extra storage. Situated in a desirable neighborhood with curb and gutter frontage, this home offers city water and sewer and is located less than one block from a beautiful city park. The privacy fenced backyard provides the perfect space for relaxing, entertaining, or letting kids and pets play safely. EST. Completion Mid July.