4
4
3259
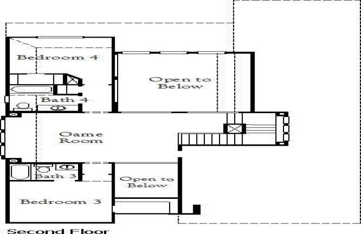
Property Description: MLS# 21193191 - Built by Coventry Homes - Aug 23 2026 completion! ~ Enjoy this spacious two-story home in the highly desirable Dominion of Pleasant Valley master-planned community. With 4-bedrooms, 3.5-bathrooms, and 3,259 sqft of living space, this home offers plenty of room for entertaining. The open great room features a cozy fireplace, perfect for relaxing, while the chef-inspired kitchen boasts sleek stainless steel appliances. Enjoy the outdoors with a covered patio, or unwind in the upstairs game room or the separate media room. A private study provides a quiet space for work or relaxation. This home combines modern design with the amenities of a vibrant, sought-after community. Don’t miss your chance to make this stunning home yours!