3
2
2237
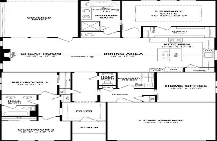
Property Description: This charming 1-story home features 3 bedrooms, 2.5 baths, a convenient home office, and 2-car garage. A welcoming foyer with coat closet and HovHall with laundry room keep your home tidy. The elegant primary suite includes a private bath with dual sinks, soaking tub and huge walk-in closet. The kitchen features white shaker cabinets, quartz countertops, a spacious island illuminated by black metal shade pendant lighting, walk-in pantry, and naturally lit great room and dining area with access to the covered patio. Residents enjoy future on-site amenities at Heritage Ranch including walking trails, a pool, and a community park. Schedule a tour today!