4
2
1773
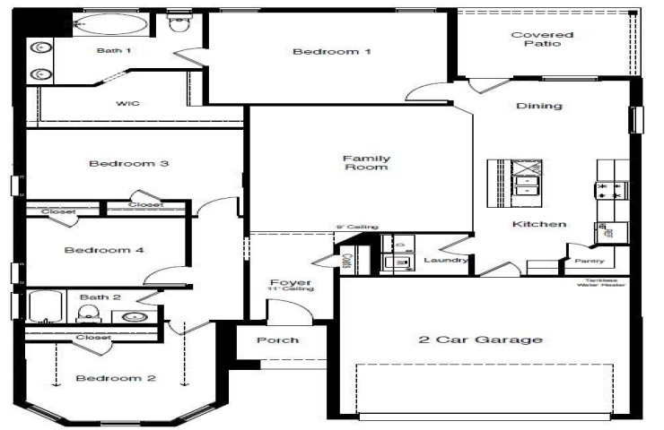
Property Description: Mustang Ridge offers a wide selection of new homes to choose from, featuring 3 to 5 bedrooms and 2 to 3 bathrooms, starting from a spacious 1,469 sq ft. One of the key benefits is the absence of HOA fees. Our thoughtfully designed new homes are crafted with attention to detail and high-quality finishes, including elevated modern features and designs. The exterior of the homes is equally impressive, featuring durable shingles and brick siding, along with a landscaped front yard.