3
2
1701
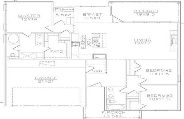
Property Description: Welcome to The Henry in the desirable Belle Maison Subdivision! This beautiful new construction home offers 3 bedrooms, 2 bathrooms, and a thoughtfully designed open floor plan perfect for modern living. The spacious primary suite provides a relaxing retreat with a luxurious ensuite bathroom featuring a soaking bathtub, separate shower, and double vanities. The large living room is filled with natural light and flows seamlessly into the kitchen, with a convenient breakfast bar creating the perfect space for entertaining and everyday living. The kitchen will showcase quartz countertops, trendy paint colors, and decorative lighting, combining style and functionality throughout the home. Scheduled for completion early April 2026, this home will be move-in ready just in time to enjoy the Spring season. Don’t miss your opportunity to own a beautiful new home in Belle Maison! NHC