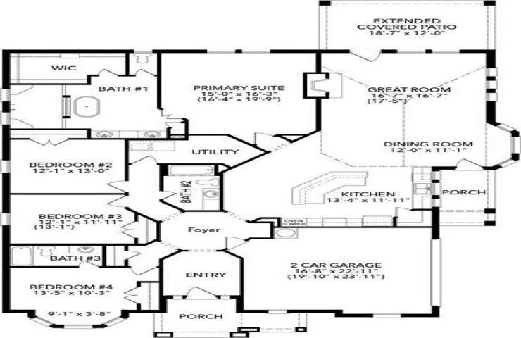
Property Description: MLS# 21197779 - Built by Sandlin Homes - May 2026 completion! ~ Discover this stunning new construction single-family residence in the desirable Joshua Meadows subdivision, set to be completed by Spring 2026. This traditional home offers 4 spacious bedrooms, including 4 primary bedrooms, and 3 full bathrooms, totaling 2,734 square feet of thoughtfully designed living space. The residence features a cozy living area with a fireplace, a single dining area with bay windows, large walk-in shower with double shower heads, and an extended covered patio for outdoor enjoyment. Enjoy the beauty of a well-planned layout with interior selections including gorgeous blue-patterned kitchen backsplash tiles, neutral wood tones throughout and sleek black fixtures. With a 2-car garage and located within the Joshua ISD, this property is perfect for families seeking a vibrant community. Don't miss your chance to own this exceptional home!