4
2
1901
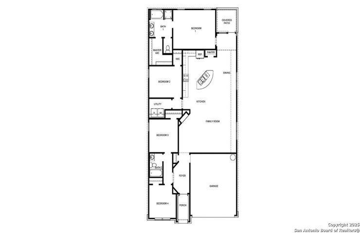
Property Description: Welcome to The Knight, our largest single-story home offered at Stonehill in San Antonio, TX. Featuring 3 classic front exterior, 4 bedrooms, 2 bathrooms, 2-car garage and 1901 square feet of living space, this floor plan is sure to turn heads. Spacious, comfortable living greets you at the door with a long foyer leading to a decorative wall nook and a grand, open concept living room, kitchen and dining area. The kitchen is complete with beautiful quartz countertops, stainless steel appliances, classic white subway tile backsplash, and an oversized kitchen island with a deep single basin sink. Your blended living room and dining area feature luxury hard surface flooring and plenty of windows, creating a light and bright space for living and entertaining. The private main bedroom is located at the back of the home and features a large, relaxing ensuite bathroom complete with a separate tub and walk-in shower, dual vanities, a water closet, and spacious walk-in closet. All secondary bedrooms offer quality carpeted floors and a closet. These rooms are versatile! Use them as bedrooms, offices, work out rooms or other bonus spaces. Additional features include tall 9-foot ceilings, 2-inch faux wood blinds throughout the home, ceramic tile in the bathrooms and utility room, pre-plumb for water softener loop, and full yard landscaping and irrigation. You'll enjoy added security in your new home with our Home is Connected features. Using one central hub that talks to all the devices in your home, you can control the lights, thermostat and locks, all from your cellular device.