3
2
1517
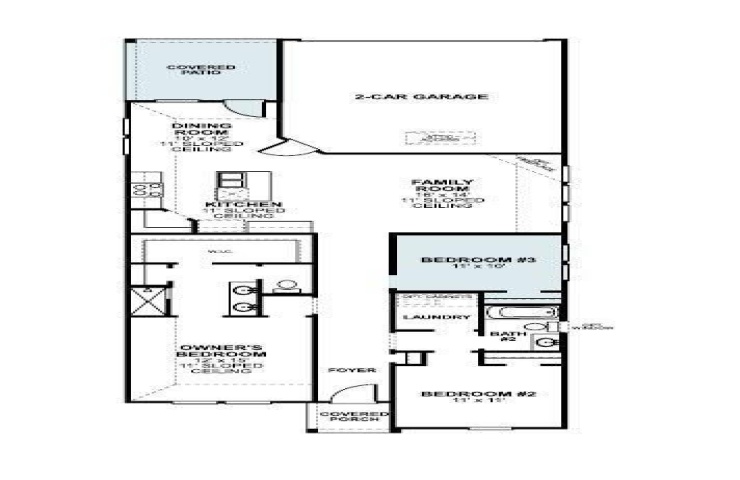
Property Description: Built by M-I Homes. Discover this stunning new construction home at 1041 Western Hills Drive in Crowley, TX, featuring a layout that prioritizes natural light and effortless movement throughout the interior. Key Features: • 3 spacious bedrooms with owner’s suite in its own private corner • 2 well-appointed bathrooms featuring quality fixtures • Spacious amount of expertly crafted living space • Open-concept living area creating a seamless flow between kitchen and gathering spaces • Fresh construction showcasing quality craftsmanship and modern energy efficiency Neighborhood & Location Benefits: • Situated in a desirable Crowley neighborhood with a community-focused feel • Proximity to beautiful neighborhood parks and outdoor recreational opportunities • Ideal location for those who value green spaces and an active lifestyle The central living area serves as the heart of the home, fostering a connected environment where common rooms flow together naturally. The owner’s suite in its own private corner ensures a quiet retreat, while the two additional bedrooms offer flexibility for guests, family, or a dedicated home office. With its functional floorplan and modern building standards, this move-in ready home delivers a comfortable environment that maximizes every square foot for contemporary living. Schedule your visit today!