4
4
4234
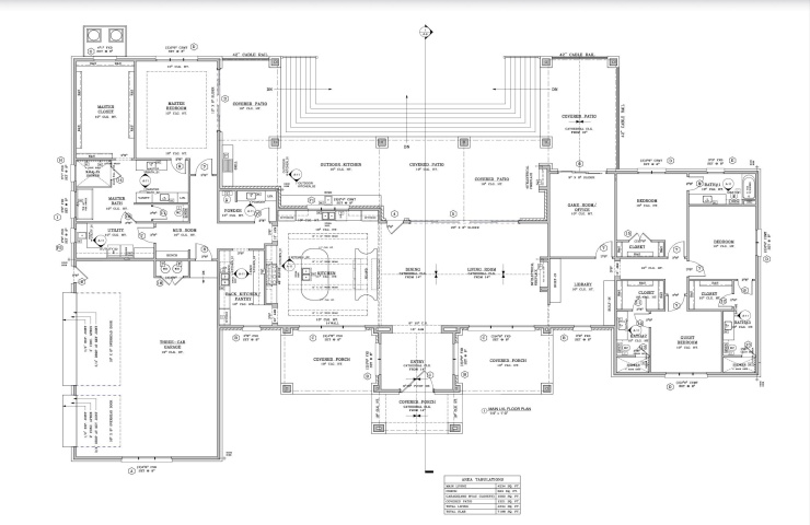
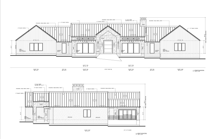
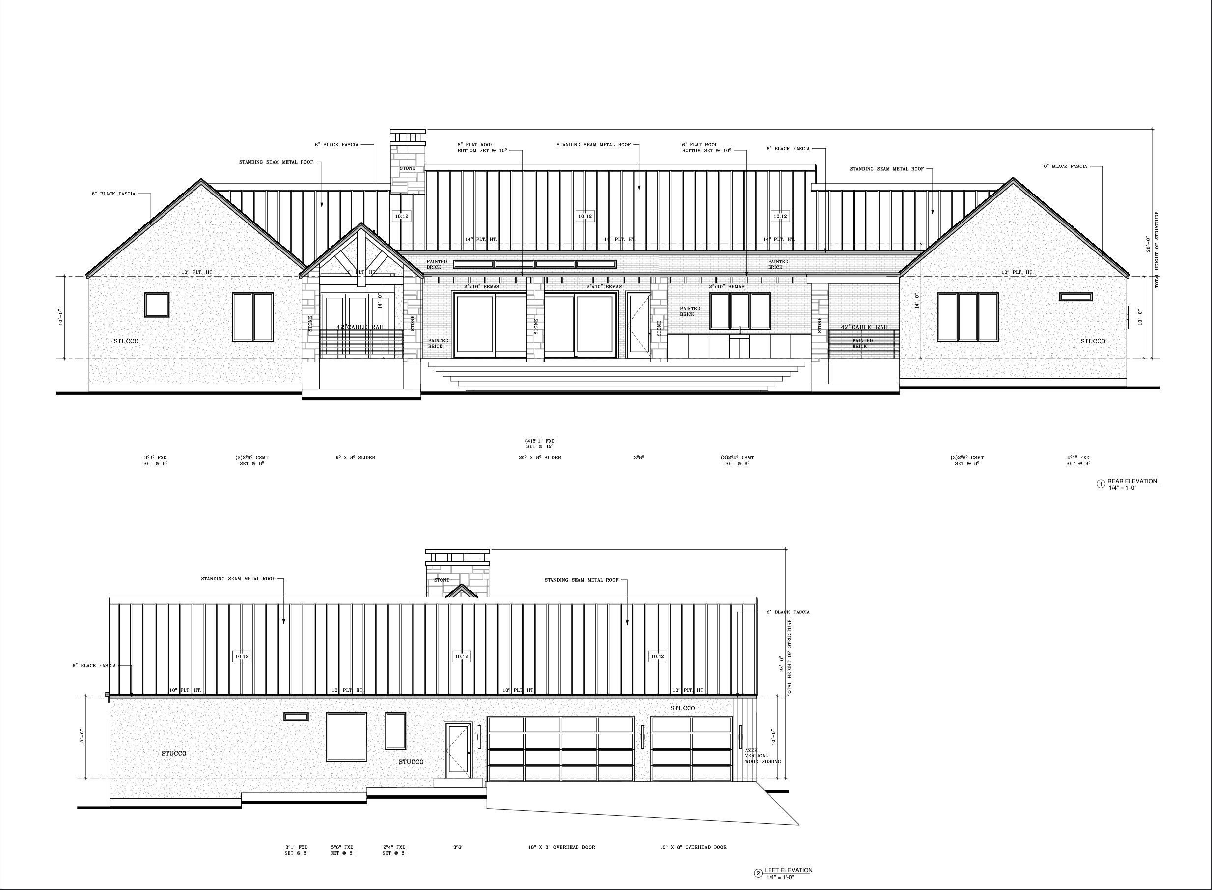
Property Description: Welcome to 100 Beauty Berry in Summit Rock by Lucas Anthony Homes. This home is under construction and expected to be completed in Fall of 2026. The home is designed to be a fusion of a Modern & Rustic dream home with a chef's kitchen, prep kitchen, built in stand alone refrigerator and freezer adorning the kitchen, 2 islands, 6 foot windows, bedrooms with dedicated bathrooms, custom built-in-home cabinetry throughout, beautiful accent walls, wet bar, electric fireplace inside and gas starter outdoor fireplace on the large covered back patio, outdoor kitchen, and a level backyard. The home is designed with Beautiful hardwood floors throughout with Soho tile in the bathrooms, Free-standing tub in the primary bathroom, 14 foot cathedral ceilings in the living room and 10 foot ceilings throughout, a large pivot front door, built with 2x6 energy efficient construction, Halo system on HVAC, and gutters around the home. This home is sure to be a knock-out gorgeous home with premium luxury design, finishes and execution. Stay tuned in to see updated photos as this home proceeds thoughout its build phases. Finish selections can be made by buyer for a limited time. Finishes are subject to change by builder.