4
2
2720
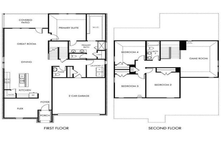
Property Description: BRAND NEW energy - efficient home May 2026! Skip your commute and work from home in flex room turned home office of the Pearl. White cabinets with veined white quartz countertops, tan tone EVP flooring and light grey brown textured carpet. Spend the weekends debating what activity to do in this amenity-filled community, make a splash in the resort-style pool, pick up a game of basketball, or let the kids loose on the playground. With quick access to US 380, residents will enjoy the benefits of a short commute to downtown McKinney, Frisco, or Richardson to enjoy nearby shopping and entertainment. Each of our homes is built with innovative, energy-efficient features designed to help you enjoy more savings, better health, real comfort and peace of mind.