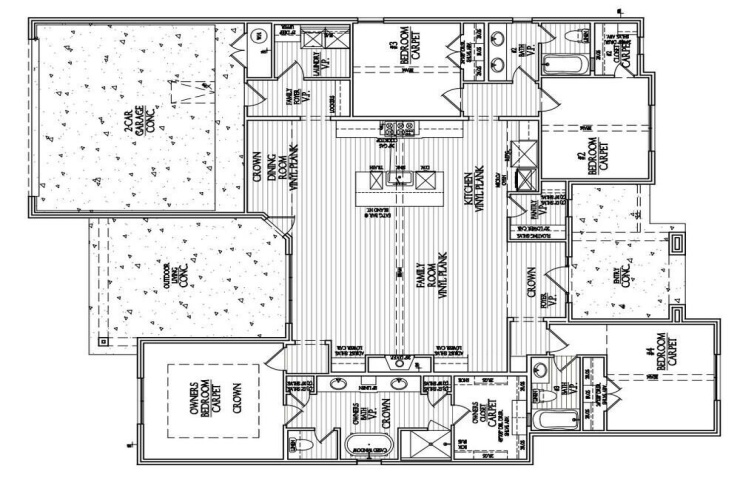
Property Description: This thoughtfully designed 4 bedroom, 3 bath home by Addison Homes offers the perfect blend of everyday comfort and practical features. The main living area welcomes you with an open and inviting feel, creating a natural flow between the living room, dining area, and kitchen. The kitchen is a standout with ample counter space and storage to keep everything organized while cooking and entertaining. The primary suite offers a relaxing retreat with a private bathroom and generous closet space. Three additional bedroom and two additional full bathrooms provide flexibility for family, guests, or a home gym or office. Step outside to enjoy the covered back patio, and ideal extension of your living space. Whether you are grilling, entertaining, or enjoying a quiet evening outdoors, this space offers endless possibilities. Addison Homes