5
4
3754
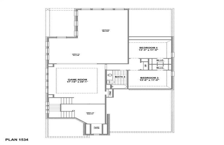
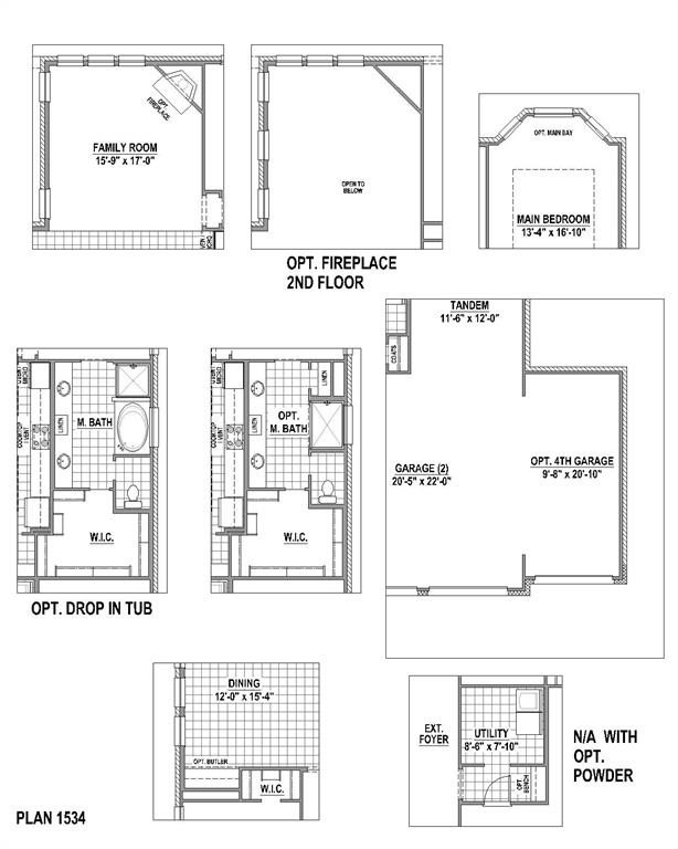
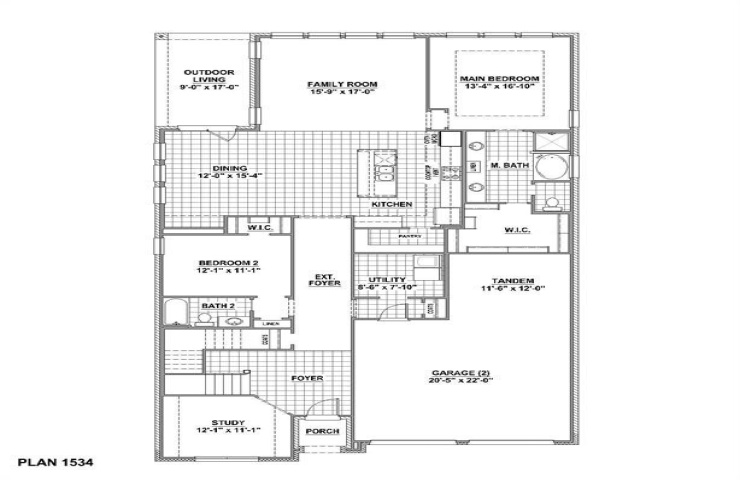
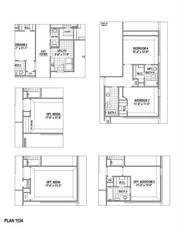
Property Description: This best selling design features 5 bedrooms, 4.5 bathrooms (2.5 bathrooms on the first floor), game room, media room and study. Step inside to an open floor plan that brings the living, dining and kitchen areas together with 18' ceilings for a grand feeling of spaciousness. The chef's kitchen is a delight with stainless steel appliances, custom cabinetry, upgraded quartz counter tops, designer lighting, a spacious pantry and a Butler's cabinet. The family room features a fireplace and lower, as well as, upper windows for an abundance of natural light. The first floor main bedroom boasts an ensuite bathroom with a free standing tub, separate vanities and a large closet. A second downstairs bedroom, with an ensuite bath, provides the perfect guest room. The second floor has 2 bedrooms and a bath. Bedroom 3 has an ensuite bathroom making it perfect for an older family member allowing for privacy. A media room, game room with an open railing, floating shelves and a dry bar complete the upstairs. All downstairs doors have been upgraded to 8' hollow core doors. This beautiful home has a 3-car tandem garage. Come visit our model of this floor plan and make this American Legend home yours!