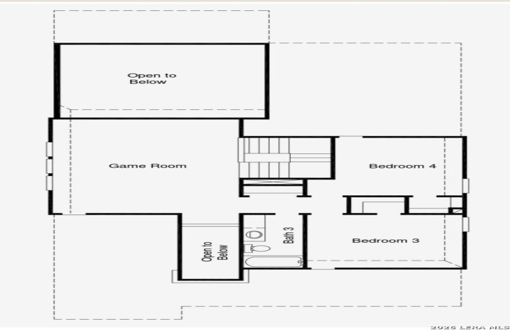
Property Description: The Lasara floorplan offers an exceptional combination of space, comfort, and style in a thoughtfully designed two-story layout. This home includes four spacious bedrooms and three full bathrooms, catering to both privacy and functionality. Separate tub/shower in primary bath. The open floor plan on the main level creates a seamless flow between the living room, dining area, and kitchen, making it ideal for entertaining or family gatherings. The upstairs area houses the bedrooms, providing a private retreat for relaxation. The master suite features a luxurious en-suite bathroom and walk-in closet, enhancing the sense of comfort and convenience.