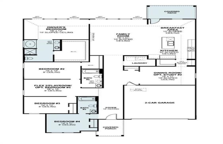
Property Description: Built by M-I Homes. Explore this grand and expansive new residence at 3512 Kingdom Drive in Denton, TX. This single-story home is crafted for easy movement, featuring a bright and fluid layout where every room is conveniently situated on one level.
Key Features:
• 4 generous bedrooms, including an owner’s suite tucked into its own private corner
• 3 full bathrooms finished with modern fixtures and high-quality materials
• Spacious amount of living space thoughtfully arranged on a single floor
• Open-concept main hub that joins the kitchen and family room for a connected feel
• Brand-new construction with fresh finishes and expert craftsmanship throughout
Neighborhood & Location Benefits:
• Situated in a desirable Denton community with a welcoming, residential atmosphere
• Excellent proximity to local parks and green spaces for outdoor relaxation and fun
• A perfect residential setting that balances a peaceful retreat with access to daily conveniences
The interior is designed for a natural flow, with a central gathering space that brings the main living areas together for effortless daily life. Because the owner's suite is situated in its own private corner of the home, it provides a quiet sanctuary separate from the rest of the household. The additional bedrooms offer plenty of flexibility, whether you need space for guests, a hobby room, or a dedicated home office, all on one convenient level without the need for stairs.
This move-in-ready home offers the perfect combination of simple single-story convenience and a modern, airy design in a fantastic location.
Schedule your tour today.