4
2
2206
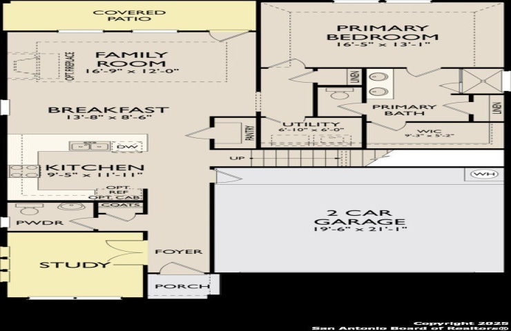
Property Description: This charming two-story home is thoughtfully designed for modern living, offering a perfect blend of comfort, functionality, and style. From the moment you enter, the open flow of the main living areas draws you in, creating an atmosphere that feels both spacious and inviting. At the heart of the home, the gourmet kitchen makes everyday cooking and entertaining a delight. Outfitted with sleek finishes and a smart layout, it flows seamlessly into the expansive family room. Here, oversized windows bathe the space in natural light while offering tranquil views of the backyard, setting the stage for everything from quiet mornings with coffee to lively evenings with friends and family. The primary suite is tucked away on the first floor, designed as a peaceful retreat. With its spa-inspired bath, oversized shower, dual vanities, and a generous walk-in closet, it provides the perfect balance of privacy and luxury. For those who work remotely or need a creative escape, the dedicated study downstairs offers a quiet and flexible space to focus. Upstairs, the thoughtful design continues with three spacious secondary bedrooms, each with its own character and plenty of room to grow. A central loft anchors the second floor, providing an ideal spot for movie nights, homework sessions, or simply lounging with loved ones. A shared bathroom ensures convenience for the entire household. Blending practical details with lifestyle comforts, this home is more than just a place to live-it's a space where everyday moments and cherished memories unfold with ease. This home is part of our Harmony Collection-where rustic warmth meets timeless elegance. Sunlit spaces highlight natural wood textures and twisted iron finishes, creating an inviting backdrop for homemade meals, barefoot mornings, and warm hugs at the door. Harmony brings a lived-in feel to new construction, crafting a home that feels welcoming from the very first step inside, as if it's been part of your story all along. This home is located in Arcadia Ridge, a master-planned community surrounded by 200 acres of open space. Enjoy exclusive amenities like a resort-style pool, sports court, playgrounds, and scenic walking trails-all designed to enrich daily life. With SeaWorld, shopping, dining, golf, and major employers close by, Arcadia Ridge offers a perfect balance of natural beauty and everyday convenience.