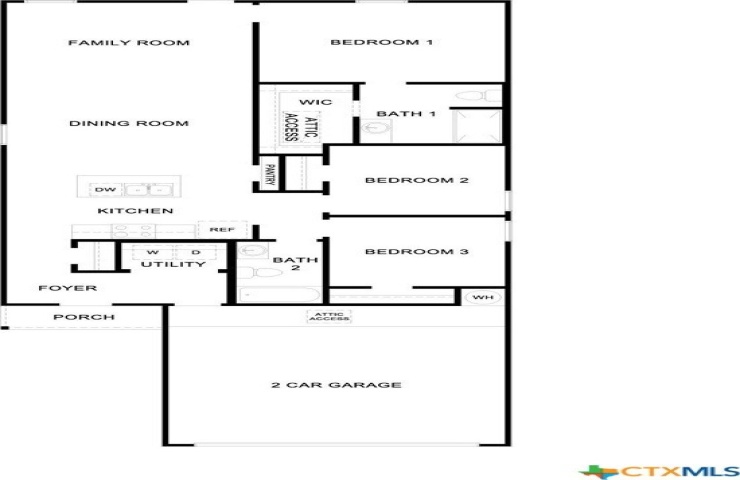
Property Description: APRIL ESTIMATED COMPLETION. Check out the Barton, one of our one-story floorplans available at Sunset Oaks in Maxwell, Texas. This 3 bedroom, 2 bathroom home includes a 2-car garage all within 1,280 square feet of comfortable living space. Our homes in Sunset Oaks feature our modern farmhouse exterior, and the Barton is available in 2 exterior options. As you enter the home from the front porch, you'll be in the foyer, which includes the utility room and access to the garage. Moving further into the home, you'll find the kitchen, dining and family room. Built as an open concept living space, you're sure to make many memories here. The kitchen features an island with a stainless-steel sink, quartz countertops, 42' upper 'picture frame' cabinets, a pantry closet, and stainless-steel appliances, including a gas range. The secondary bedrooms and bathroom are located off the kitchen. The bedrooms include carpet and closets with wood shelving. The secondary bathroom has a shower/tub combination and a cultured marble vanity with trench sink. The primary bedroom is tucked away at the back of the home and includes an attached bathroom. Start your mornings off right in this private space, which includes a walk-in shower, cultured marble vanity with trench sink and a walk-in closet. This home features our America's Smart Home base package, which includes the Video Front Doorbell, Front Door Deadbolt Lock, Home Hub, Thermostat, and a Smart Switch.