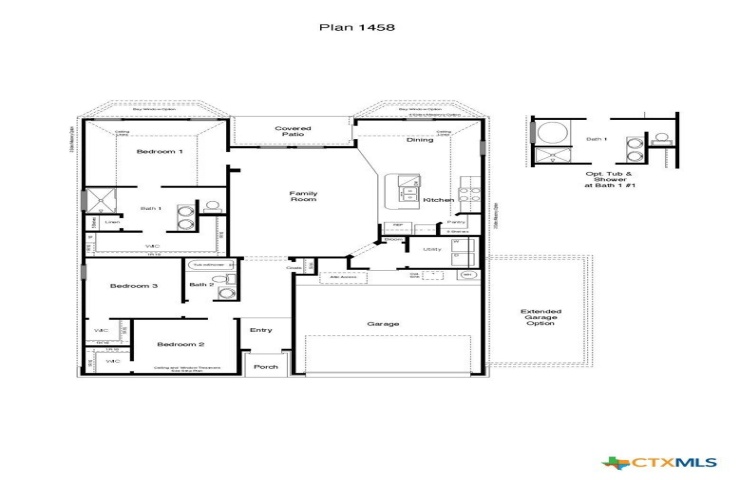
Property Description: Our Alpine is one of our one-story floorplans feature in our Three Creeks - Colt Creek in Belton, Texas. This comfortable 3 bedroom and 2-bathroom home is the perfect fit for you. Inside this home, you'll find approximately 1,508 square feet and has an open-concept layout designed to fit your needs. This home has beautiful features that create a welcoming ambiance, and the 2-3 car garage options, ensures plenty of space for vehicles and storage. Enjoy the flat panel birch cabinets and granite countertops found in the kitchen, along with the decorative tile backsplash that is enhanced with the stainless-steel appliances. The primary bedroom will make you feel right at home. With an attached primary bathroom and walk-in shower that can be opted for the tub and shower combo. Starting your day or winding down will be a breeze. The large walk-in closet ensures plenty of room and storage space. Each of the secondary bedrooms have cozy carpet and spacious closet and have easy access to the secondary bathroom. The laundry room is also centrally located for convenience. Make sure to find time to enjoy the backyard from the covered patio and relax with nature. Every D.R. Horton home has smart home technology built in. Feel connected as you control and secure your home through the Qolsys smart panel, through your phone, or even with your voice. Contact us today and see why the Alpine is one of our most popular plans and is a perfect starter home for you!