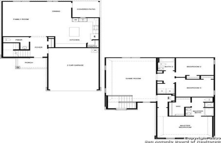
Property Description: The Bowen is a 2-story home featured at Redbird Ranch in San Antonio, TX. The Bowen is sure to stand out with three classic front exterior, 3 bedrooms, 2.5 bathrooms and 2-car garage spread across 2241 square feet of living space. Usher guest through a covered front porch (per plan) and into a front foyer which leads into a grand, open-concept living, dining, and kitchen with tons of cabinet storage and quartz countertop space. Your kitchen also includes a spacious kitchen island, stainless steel appliances, classic white subway tile backsplash, and a deep single basin kitchen sink that faces a large window overlooking your fully landscaped and irrigated backyard. The second story opens into a large and versatile loft space with plenty of natural light, an upstairs utility room, a full bath, and all three bedrooms. A decorative nook located off the stairway guides you to the large main bedroom and ensuite bathroom, secluded from the other bedrooms. Your main bedroom features a semi-vaulted ceiling, a separate garden tub, a tiled walk-in shower, double vanity sinks, and a spacious walk-in closet. The Bowen floor plan is perfect if you want a place to entertain downstairs and a private retreat to relax in upstairs. Additional features include, 9-foot ceilings, 2-inch faux wood blinds throughout the home, luxury vinyl plank flooring in entryway, living room, kitchen, and dining area, ceramic tile at all bathrooms and utility room, pre-plumb for water softener loop, and a relaxing covered back patio (per plan) located off the living room. You'll enjoy added security in your new home with our Home is Connected features. Using one central hub that talks to all the devices in your home, you can control the lights, thermostat and locks, all from your cellular device.