4
2
2825
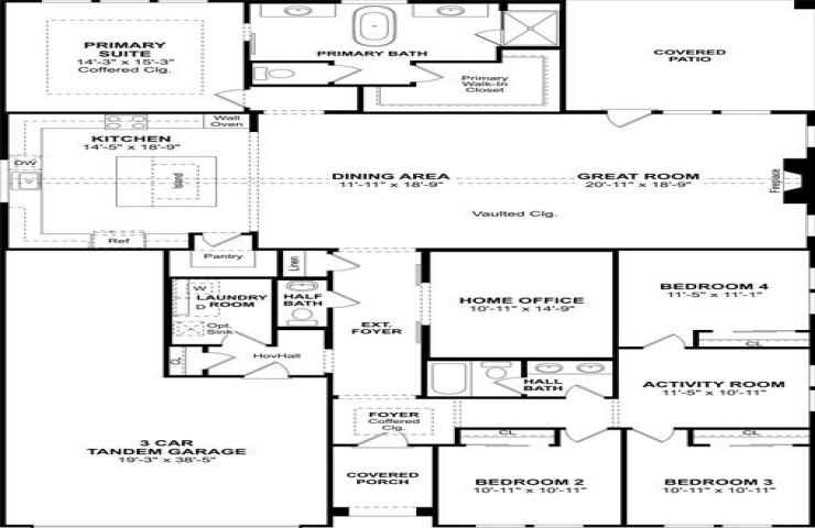
Property Description: Built by K. Hovnanian Homes, this beautifully designed single-story floor plan offers the space today’s buyers are searching for—4 bedrooms, a dedicated home office, activity room, and a rare 3-car tandem garage. Every inch of the layout is designed for both everyday comfort and effortless entertaining. At the heart of the home is the expansive open-concept living area, where soaring ceilings, natural light, and a cozy fireplace create a warm yet impressive space for gathering. The chef-inspired kitchen steals the show with a large center island, designer cabinetry, ample prep space, and a walk-in pantry—perfect for hosting holidays, game nights, or casual dinners with friends. Need space to work, relax, and play? This home delivers. A private office with stylish barn doors makes working from home easy, while the media room and activity room give you endless flexibility for movie nights, a playroom, fitness space, or a second living area. The primary suite is designed for relaxation, featuring a spa-inspired bath with a freestanding tub, separate shower, dual vanities, and generous walk-in closet—your own private oasis at the end of the day. Step outside to the 15'x15' covered patio and spacious backyard, perfect for grilling, entertaining, or simply enjoying peaceful Texas evenings. Living in Elevon means access to a growing master-planned community filled with resort-style amenities, pools, parks, walking trails, playgrounds, and community gathering spaces, all designed to bring neighbors together. Homes with this much space, this many flexible rooms, and a 3-car garage are hard to find—especially in one of Lavon’s most exciting new communities. If you’ve been waiting for a home that truly checks every box, this is it.