Builders Clearinghouse

$283,515

2133 Providence Drive, Abilene, TX 79601

Residential
Last update date 2026-01-27 12:03:12
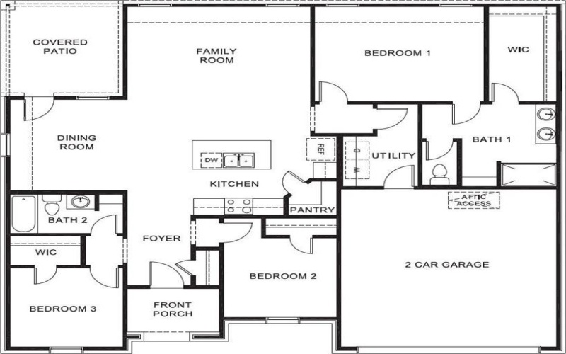
3 Beds
2 Baths
1,561sqft
  • Build in 2025
  • Lot Size 0.17 Acre
  • Property Type Residential
  • loc
    MLS # 21081695
  • Days on Market 107 Days
  • Bedrooms 3
  • Full Baths 2
  • Square Feet 1,561 Sq Ft
Description

Heritage Parks boasts an enticing selection of four one-story floorplans, catering to a variety of needs and aspirations. Choose from two expertly designed phases, each offering its own charm. The community park fosters a vibrant atmosphere, perfect for picnics, afternoons with the kids, or simply enjoying the fresh air. Experience the energy of a thriving community close to Abilene Christian University, Hardin-Simmons University, Hendrick Medical City North, and the bustling downtown area. Heritage Parks is conveniently situated near the intersection of Liberty Boulevard and State Highway 351, with easy access to Interstate 20 for seamless commutes.

×

Schedule a Showing

For further questions, including partnership opportunities, please email
info@questmls.com or contact using our contact form.

Mortgage Calculator
Monthly Payment: $
This site is registered on wpml.org as a development site. Switch to a production site key to remove this banner.