Builders Clearinghouse

$303,000

615 Sagebrush Trail, Sherman, TX 75092

Residential
Last update date 2026-01-16 00:03:14
3 Beds
2 Baths
1,524sqft
  • Build in 2026
  • Lot Size 0.11 Acre
  • Property Type Residential
  • loc
    MLS # 21126134
  • Days on Market 40 Days
  • Bedrooms 3
  • Full Baths 2
  • Square Feet 1,524 Sq Ft
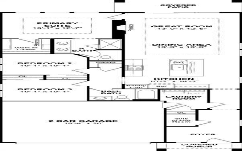
Description

This fantastic new single-story home offers a welcoming open concept kitchen, dining, and great room with luxury vinyl plank flooring. The kitchen showcases quartz countertops, white shaker cabinets, black metal shade pendant lighting, and an island that overlooks the dining area and great room with covered patio access. A primary suite features an ensuite bath with dual sinks and a spacious walk-in closet. Tucked away from the main living space are 2 secondary bedrooms and a hall bath. Residents will enjoy future on-site amenities at Heritage Ranch including walking trails, a pool, and a community park. Schedule a tour today.

×

Schedule a Showing

For further questions, including partnership opportunities, please email
info@questmls.com or contact using our contact form.

Mortgage Calculator
Monthly Payment: $
This site is registered on wpml.org as a development site. Switch to a production site key to remove this banner.