4
3
2810
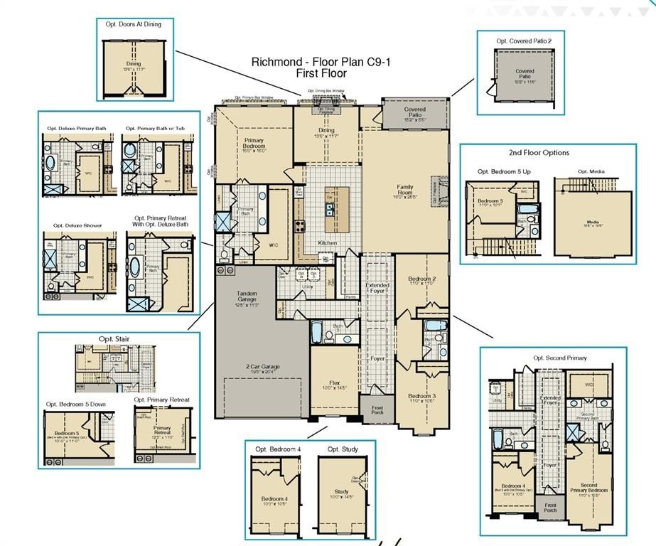
Property Description: MLS# 21002643 - Built by J Houston Homes - Ready Now! ~ NEW JOHN HOUSTON HOME IN MIDLOTHIAN! This smart home offers 4 bedrooms, 3 bathrooms, and a study. The 12-foot ceilings, along with the floor-to-ceiling windows, make this home feel GRAND. The chef's kitchen features a 36inch electric cooktop, single wall oven, pot and pan drawers, all-wood custom cabinets, a large wood wrapped island, and a trash rollout, creating an inviting atmosphere for cooking and entertaining. The primary suite is a true retreat, featuring a deluxe bath, dual vanity, and a spacious primary closet. MOVE-IN READY