4
3
2696
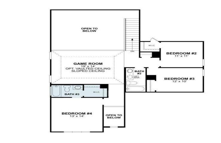
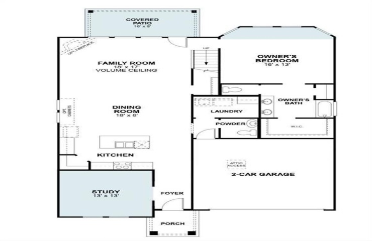
Property Description: Built by M-I Homes. Welcome to 3704 Water Lily Way in Celina, Texas, a beautiful new construction home built by M-I Homes featuring a thoughtfully designed living space. This charming home features the following: 4 bedrooms, including a downstairs owner's bedroom for convenient single-level living 3.5 bathrooms with quality fixtures and finishes Open-concept living space that creates a natural flow between kitchen, dining, and family areas Spacious kitchen with ample counter space and storage options Versatile floorplan that accommodates both everyday living and entertaining Built with attention to detail and quality craftsmanship, this new construction home provides a fresh canvas for your personal style. The design emphasizes functionality while maintaining aesthetic appeal throughout all living spaces. The downstairs owner's bedroom serves as a private retreat, complete with an en-suite bathroom and generous closet space. Additional bedrooms upstairs offer family members or guests their own comfortable spaces. The home's thoughtful design incorporates energy-efficient features and quality materials that create a comfortable environment year-round. Large windows allow natural light to flood the interior spaces, creating a bright and welcoming atmosphere. Located in a developing area of Celina, this home provides a balance of connectivity and tranquility. The Water Lily Way address places you in a setting where you can enjoy the benefits of new infrastructure while maintaining a sense of community. Experience the quality and craftsmanship of M-I Homes in this new construction property that's ready for you to call home. Schedule a visit today!