4
3
2878
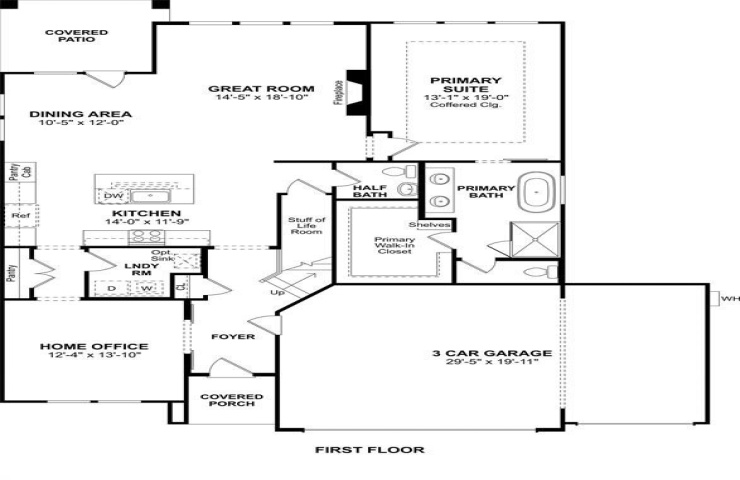
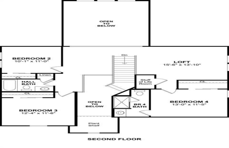
Property Description: Located in Wylie ISD! This stunning 2-story home provides a comfortable open floorplan with a convenient home office off the foyer. The kitchen features a spacious island and overlooks the well-lit great room and dining area, leading to a large covered patio. In from the garage, a HovHall with valet and laundry room keep your home tidy. The primary suite includes a private bath and a walk-in closet with built-in shelving. A versatile upstairs loft and 3 secondary bedrooms allow for comfort for all.