4
2
1990
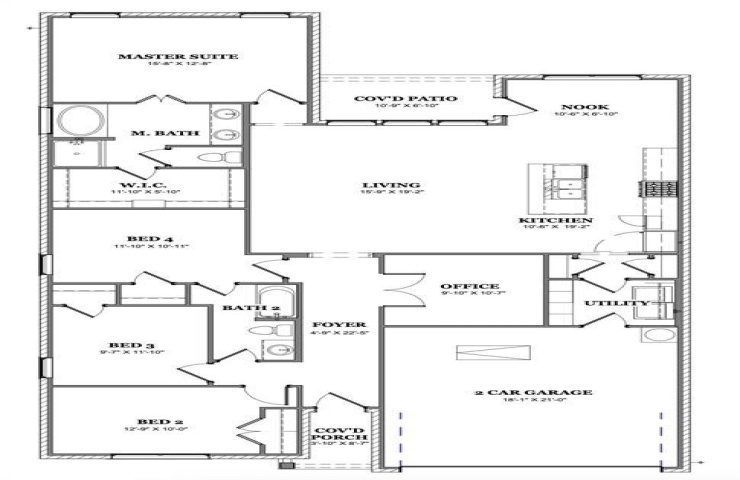
Property Description: Step inside this beautiful new construction home by Clarity Homes and instantly feel the blend of modern comfort and timeless design. From the moment you enter, you’re greeted by a signature brick archway that sets the tone for the craftsmanship and attention to detail found throughout. The open-concept living area features luxury vinyl wood-style flooring that flows effortlessly through the entry, living, kitchen, mud hall, utility, and hall creating a warm, cohesive feel. The chef’s dream kitchen invites you to gather around the expansive eat-in island, complete with stainless steel appliances and stylish finishes that make both cooking and entertaining a joy. Just off the living area, retreat to the private master suite, where a large soaker tub and separate shower offer a spa-like experience after a long day. Throughout the home, you’ll find designer lighting and curated details that elevate every space. Step outside to your fully landscaped yard with irrigation, designed for easy maintenance and year-round beauty. The covered patio is perfect for morning coffee or evening get-togethers under the Texas sky. Located in the Courts of Bonnie Brae, this home offers a quiet neighborhood setting with easy access to Denton’s shops, dining, schools, and major highways, everything you need, right where you want to be. * Ask about our Incentives * Ask about our other builder homes