3
2
2226
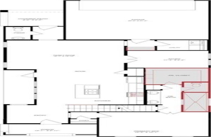
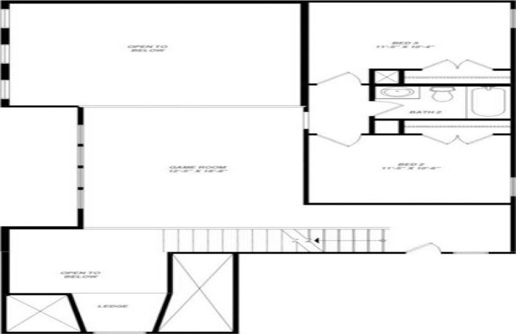
Property Description: MLS# 21033913 - Built by HistoryMaker Homes - Ready Now! ~ LONE STAR SALES EVENT - Texas-Sized Savings on Move-In Ready Homes - Get 4.99% Fixed Rates, up to $15,000 toward Closing Costs, and a FREE Move-In Package including fridge, washer, and dryer for a limited time only! This Alton is equipped with a beautiful elevation and is in close proximity to Amenities! This 3-bedroom, 2.5-bath, 2-story home makes a lasting impression with its charming front porch and spacious entryway. Inside, you'll find an open kitchen and family room perfect for gatherings, while a dedicated study offers a quiet retreat. The kitchen comes equipped with model grade finished; from the upgraded cabinets and island-wrap to upgraded countertops and built-in appliances. The Primary Bathroom offers and extended dual-sink vanity, walk in closet, and oversized shower with dual zones. Upstairs, the game room adds even more flexibility for fun and relaxation. This north-facing home is located on Model Row, which gives you access in and out of the community in a flash!