3
2
1412
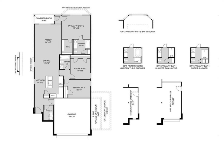
Property Description: Love where you live in Sycamore Landing in Fort Worth, TX! The Aspen floorplan is a charming 1-story home and features 3 bedrooms, 2 bathrooms, and a 2-car garage! This home has it all, including privacy blinds and vinyl plank flooring throughout the common areas! The gourmet kitchen is sure to please with 42” cabinets and granite countertops! Retreat to the Owner’s Suite featuring double sinks with granite countertops, a separate tub and shower, and a walk-in closet! Enjoy the great outdoors with a covered patio! Don’t miss your opportunity to call Sycamore Landing home, schedule a visit today!