4
2
2182
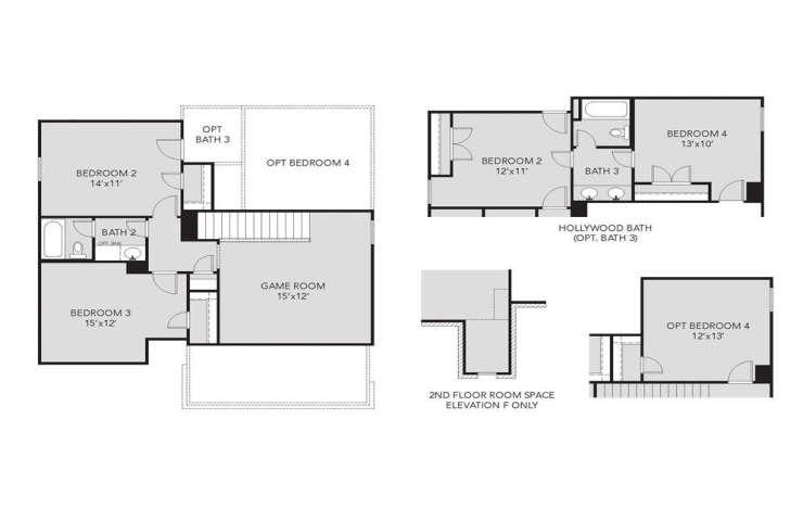
Property Description: Love where you live in Sycamore Landing in Fort Worth, TX! The Tivoli floor plan is a spacious 2-story home with 4 bedrooms, 2.5 bathrooms, study, game room, and 2-car garage. This home has it all, including privacy blinds and vinyl plank flooring throughout the common areas! The gourmet kitchen is sure to please with 42-inch cabinetry and granite countertops. Retreat to the first-floor Owner's Suite featuring double sinks with granite countertops, a separate tub and shower, and a spacious walk-in closet! Secondary bedrooms have walk-in closets, too! Don't miss your opportunity to call Sycamore Landing home, schedule a visit today!