4
2
2472
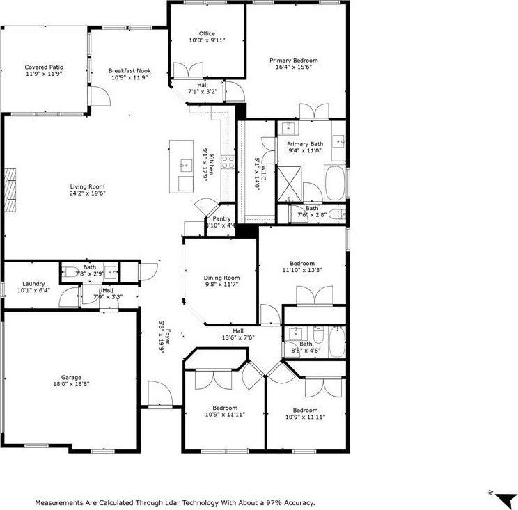
Property Description: LOCATION, LOCATION! Only 1 quarter of a mile from I-30! Beautiful, NEW Custom Home, on 1.5 acres, Caddo Mills ISD! Country living, but easy access to shopping, schools, restaurants! 6 miles to Caddo Mills! 10 miles from either Greenville or 11 miles to Royse City. Gorgeous brick and stone exterior, 2 car side entrance garage, concrete driveway, partially fenced with gate. Enter into the modern style, open floor plan, gourmet kitchen with over sized quartz island, Cozy and Elegant Electric Fireplace for those cold winter nights! Large Living area for entertaining family and guest. Chef's, all electric, dream kitchen includes smooth top cook top, built in oven with microwave above, large apron sink, Vented Exhaust, walk-in pantry and dishwasher. Multiple eating areas for you to enjoy family style in the dining area, snacks along the kitchen island, or casual style in the breakfast nook! Primary Ensuite has separate walk-in Marble Tiled shower, huge oval soaking tub, separate vanities, and over-sized walk-in closet. Split bedroom style with two guest rooms, separated by the tub-shower combination full bath. Oversized arch style and full view widows throughout the home allows tons of natural light and country views! Outdoors, you will find a large covered Patio, more than ample space for a swimming pool or workshop! Don't miss this opportunity to own this exquisite home and property to roam! Priced to Sell!