4
2
2011
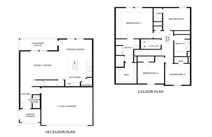
Property Description: New Construction by DR Horton. This beautiful 2 story home offers 4 Bedrooms, 2 Bathrooms, 2 Car Garage, and Covered Patio. Energy efficient, and smart home features included.