5
5
4365
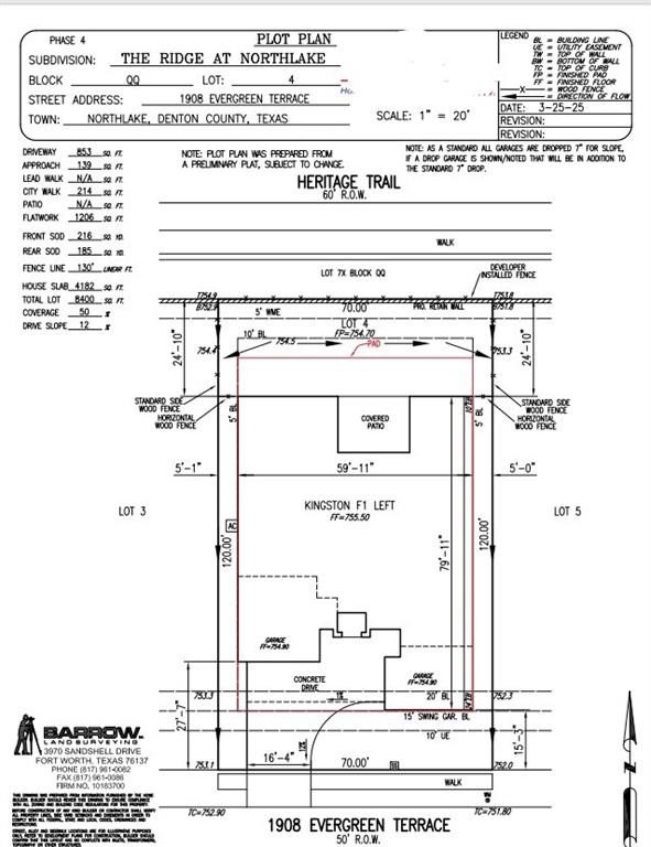
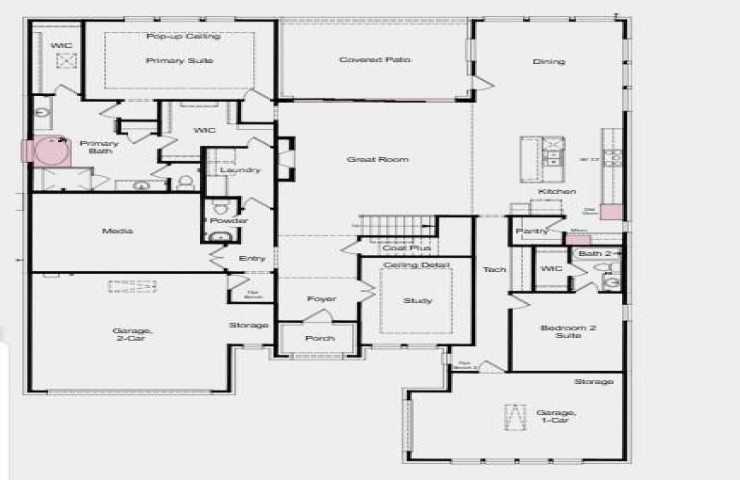
Property Description: New Construction – Ready Now! Built by Taylor Morrison, America's Most Trusted Homebuilder. Welcome to the Kingston at 1908 Evergreen Terrace in The Ridge at Northlake 70s! The Kingston plan blends elegance and comfort with spaces designed for how you live. Off the foyer, a spacious study leads to an open-concept layout where the gourmet kitchen overlooks the dining area and great room. The first-floor primary suite offers a relaxing retreat with a spa-inspired bath and two walk-in closets. Nearby, a private media room with half bath and a guest suite with its own bath add convenience. Upstairs, three bedrooms each feature an ensuite bath, and an expansive game room with a nearby half bath is perfect for fun and relaxation. The Ridge at Northlake 70s offers everyday luxury in the acclaimed Argyle ISD. Enjoy chef-inspired kitchens, private courtyards, and resort-style amenities including pools, fitness centers, playgrounds, and social spaces—all in a vibrant community designed for connection. Additional Highlights Include: Sliding door unit at great room, gourmet kitchen, and drop-in tub at primary bath. Virtually Staged Photos Added MLS#21049497