3
2
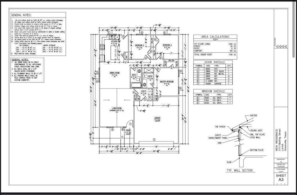
1300
Property Description: Major Price Reduction! This beautifully designed home offers modern living, a builder’s warranty plus a 1-year home warranty, giving you the confidence and comfort you deserve. Seller concessions and lender credit with our preferred lender available to help with buyer closing costs! If you’ve been searching for a move-in ready home with an open floor plan, this one checks all the boxes. The spacious living area flows smoothly into a custom kitchen featuring quartz countertops, a stainless steel farm sink, a kitchen island, and upgraded built-in cabinetry with a pullout trash bin. You’ll love the brand-new stainless steel appliances, including a dishwasher, microwave, and stove perfect for everyday living and holiday meals. The primary bedroom suite offers a walk in shower and a walk in closet with built in shelving for easy organization. This home also includes a roomy laundry area with space for a full-size washer and dryer, plus extra cabinets for storage. You’ll also find a 2 car garage with 8 ft garage doors, providing room for larger vehicles, tools, or weekend toys. The location is ideal, just minutes from Downtown Greenville, TX, close to great shopping, restaurants, parks, and all the local conveniences homeowners love. If you’re looking for a new home in Greenville that blends stylish design, practicality, and value, this property is a must-see. Schedule your private tour today before it’s gone! Sale excludes staging items. Buyer and buyer’s agent to verify all information including schools, utilities, etc.