4
3
2500
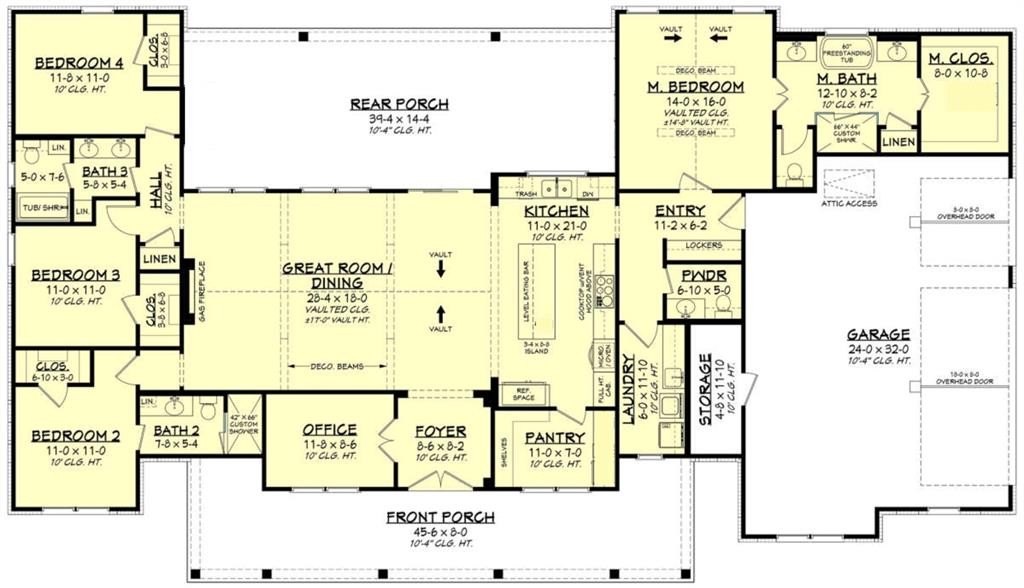
Property Description: This stunning proposed Laramie Plan! This 5-acre ranchette in Parker County is perfect for those looking to embrace country living. Inside, includes 4 bed 3 full bathrooms, along with a convenient half bath and a dedicated office on 5 acres. Take advantage of NO PAYMENTS while you build with Zeal Home Builders! This home includes high-end features such as split bedrooms, large porches, custom cabinetry, Delta faucets, decorative mirrors, wall-mounted TV outlets, hardline ethernet ports, & spray foam insulation. Step into a vaulted great room that provides beautiful views of the rear porch, while the adjoining dining room allows easy access to outdoor spaces. Culinary enthusiasts will love the well-appointed kitchen, complete with a large center island for additional eat-in space, double ovens, & a huge pantry, & all the modern amenities a home chef could desire. The owner’s suite is a luxurious retreat, boasting vaulted ceilings, natural light, & a large walk-in closets. The ensuite bath is designed for relaxation, featuring dual vanities, a separate tub, and a spacious walk-in shower. Two additional bedrooms share a well-appointed hall bath with dual vanities and a tiled tub shower. 1 of 4 bedrooms includes an attached full-bath. The back porch is an entertainer's paradise. With a wide range of options at your disposal, you can tailor it to suit your unique needs. Home was 3-phase inspected & a comes with 1-2-10 3rd Party Warranty for your peace of mind. Animal enthusiasts will love the freedom to bring horses, cattle, chickens, and more. With AG EXEMPT status previously utilized for hay production. Located just 25 minutes from Weatherford and under an hour from downtown Fort Worth, this rural gem offers both tranquility and convenience. Enjoy the benefits of NO HOA, NO water bill, & NO city taxes! Txt keyword ZHB33 to 88000 for Virtual Tour & builder details. Directions & lot map at www.zhb.homes