4
4
3217
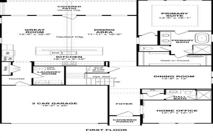
Property Description: New Home in master-planned community. The Santa Fe home is impressive, stately and grand. Complete with 4 bedrooms, 4 baths, and a private home office. A hall bath and intimate dining room are set right off the welcoming foyer. A sizeable kitchen features a pantry and island overlooking the spacious great room and dining area with access to the covered patio. A primary suite includes a generous walk-in closet, private bath with dual sinks and freestanding tub. A versatile loft, 2 full baths, storage and linen closet reside on the 2nd floor along with 3 spacious bedrooms. Residents will enjoy on-site future amenities at Creekshaw including walking trails, a pool, and community pocket-parks. Schedule a tour today.