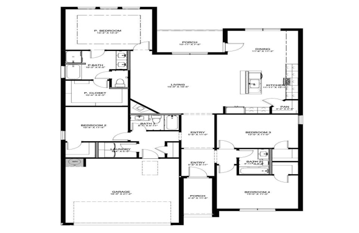
4
3
2048
Property Description: Welcome to The Oakland Hills, a home that's ready to grow with you. AND NOW OFFERING up to $7,500 towards closing costs. Sitting in The Overlook in Frenship ISD, this 4-bedroom, 3-bath home delivers 2,048 sq. ft. of open, livable space designed for the way families really live. The heart of the home is the kitchen and living area, where natural light and an open layout keep everyone connected. Cook dinner on the gas range, gather around the oversized island, and wind down by the fireplace - this is where memories are made. Your primary suite feels like its own getaway, with a roomy bath featuring a separate tub and shower plus plenty of closet space. Three additional bedrooms and two full bathrooms give everyone space to spread out. Outside, you'll love the timeless brick exterior and the convenience of a 2-car garage. Ready to see it in person? Schedule your tour today and step into a home that's ready for your next chapter. ***Approximately 30 days from completion***