4
3
2985
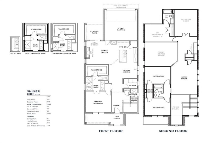
Property Description: Step into this thoughtfully designed Shaddock home, filled with upgrades and modern features your family will love. With 4 spacious bedrooms, 3.5 baths, a tech space, media room, and game room, there’s room for everyone to live, work, and play. Enjoy the open layout highlighted by sliding glass doors that bring in natural light and connect seamlessly to outdoor living. This north-facing home overlooks a peaceful greenbelt, offering both beauty and privacy. Just a short walk away, the community center features a sparkling pool, tennis courts, and pickleball courts—perfect for family fun and neighborhood gatherings.