5
2
2572
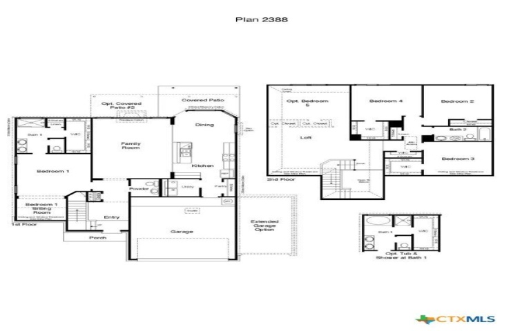
Property Description: Introducing the Sonoma plan, a unique two-story floor plan in our Village at Nolan Heights community in Harker Heights, Texas. This 4-5 bedroom, 2.5- bath plan has the perfect amount of space at approximately 2,572 sq. ft. and a 2-3 car garage. Enjoy the first floor with the open concept living space, with the great room, dining area, and kitchen all blending seamlessly. From the great room you can access the primary room that has an attached bathroom with a walk-in shower that has the option for a tub and shower, along with the spacious walk-in closet. Enjoy the covered patio that can be opted for an alternative covered patio from the dining room. Along with having easy indoor access to the garage and the laundry room from the kitchen. Upstairs, you’ll find the three secondary bedroom with an option of adding another bedroom and a loft. Each bedroom is carpeted and cozy. Enjoy the separate spacious secondary bathroom that is placed between the secondary bedrooms. Like with all our homes, you’ll never be too far from home with our smart home technology thoughtfully designed into every detail. Find security and control through the Qolsys panel, your phone, or voice. Contact us today to learn more about the Sonoma floorplan!