4
2
1898
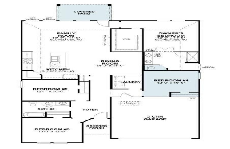
Property Description: Built by M-I Homes. Discover this stunning new construction home located at 1700 Quapaw Trail in Mesquite. This charming single-story home features 4 bedrooms, 2 full bathrooms, an open-concept living space, a 2-car garage, and much more! Best of all, this home is situated on a one-of-a-kind corner homesite with incredible greenspace nearby and backing up to scenic walking trails. This well-appointed home showcases excellent design quality with attention to detail in every corner. The open-concept floorplan creates a seamless flow between living areas, making it ideal for both relaxation and hosting guests. The owner's bedroom is strategically positioned for added convenience and privacy. Upgraded luxury vinyl plank flooring guides you through the main living spaces and an abundance of white cabinetry in the kitchen offers valuable storage space. The home is situated in a desirable Mesquite neighborhood known for its family-friendly atmosphere. Residents enjoy easy access to several nearby parks, providing excellent opportunities for outdoor recreation, walking trails, and community activities. The area offers a perfect blend of suburban tranquility while maintaining proximity to essential amenities. This new construction home represents an exceptional opportunity to own a beautifully crafted home in an established neighborhood. Schedule your visit today!