5
3
2916
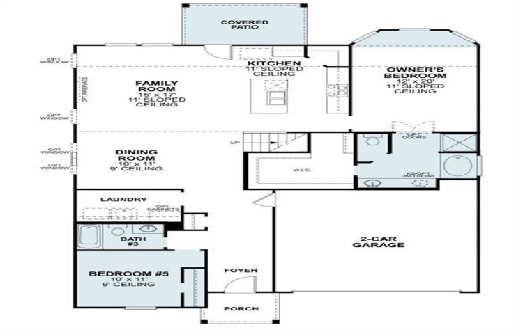
Property Description: Beautifully designed and crafted by M-I Homes, this stunning new construction home at 7749 Moosewood Drive offers 5 bedrooms, 3.5 bathrooms features the owner's bedroom conveniently located on the main floor. The home showcases M-I Homes commitment to quality construction and attention to detail. The thoughtful floorplan maximizes both comfort and functionality, with the open-concept living space serving as the heart of the home. The family room is spacious and allows for any kind of entertaining or intimate gathering. This home has amazing amenities, including granite in the kitchen and wood-look tile flooring in the common spaces. The main-floor owner's bedroom provides easy accessibility and privacy. Upstairs, you will find 3 oversized guest rooms, all with walk-in closets, as well as a massive game room with a half bath, perfect for a secondary entertainment space. Contact us today to schedule your tour!