16
16
0
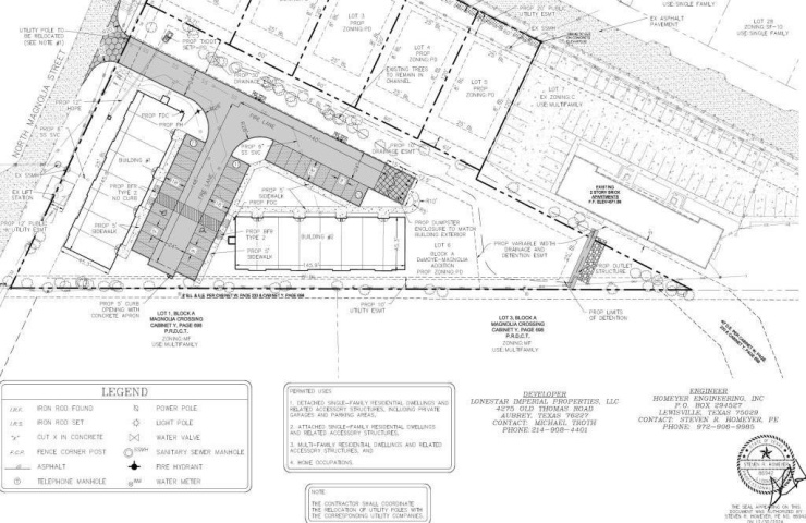
Property Description: Opportunity to acquire a 1.63-acre shovel-ready multifamily development in fast-growing Aubrey, TX. The $599,000 purchase price includes complete civil engineering and building plans for two 8-unit apartment buildings (16 units total). The property is fully designed and permit-ready, saving you time and upfront costs. With a favorable unit mix and rising rental demand in the DFW growth corridor, this is an ideal turnkey project for developers or investors looking to scale in North Texas. Construction not included, allowing buyers flexibility to control costs and select contractors. Ready to pull permits and break ground.