4
3
2106
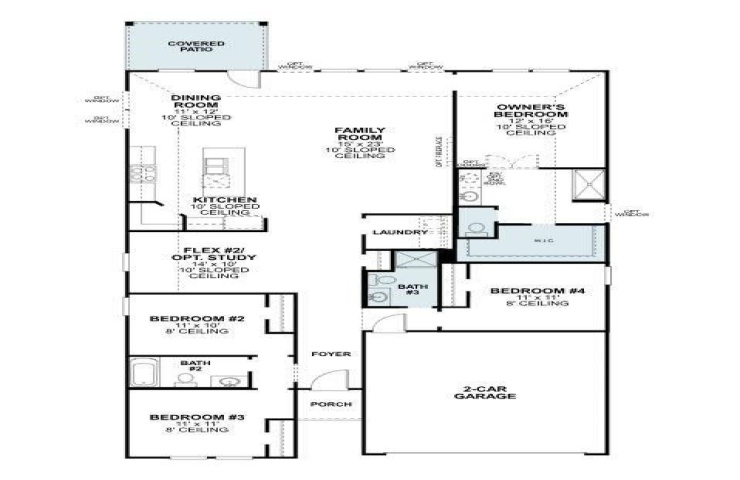
Property Description: Built by M-I Homes. Welcome to this stunning 4-bedroom, 3-bathroom home located at 1509 Etosha in the charming Royse City, TX! This beautiful new home boasts a modern design and is a testament to quality new construction by M-I Homes. The house stands at 1 Stories, offering ample space for comfortable living. Upon entering, you'll be greeted by luxury vinyl plank flooring welcoming you inside and guiding you toward the spacious and well-equipped kitchen, perfect for culinary enthusiasts and entertaining guests. The open floorplan seamlessly connects the kitchen to the rest of the living spaces, creating a warm and inviting atmosphere throughout. Extra windows in the family room further enhance the space with plenty of natural light and a glimpse of your outdoor oasis. For those who adore outdoor living, the covered patio provides a serene retreat to enjoy a morning coffee or unwind. The owner's suite is tucked privately at the back of the home -- the perfect place to unwind after a long day. Double doors open up to the en-suite bathroom, where you'll enjoy the luxury of dual sinks and a walk-in shower. The walk-in closet provides plenty of extra storage space. The extra bedrooms provide a comfortable retreat for guest or a quiet space for your new home office. Each of the bathrooms is finished with modern fixtures, valuable cabinetry, and maximum practicality. Don't miss your opportunity to find your dream home in this fantastic, amenity-rich community of Verandah. Schedule your visit today!