4
3
3252
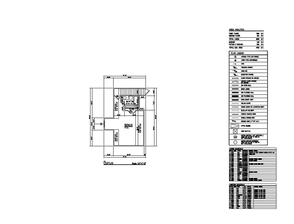
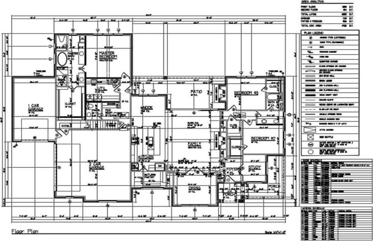
Property Description: New Construction with estimated completion date December 2025. Terrina Custom Homes is offering this single story ranch on 2 acres with 4 bedrooms, 4 bathrooms & oversized 3 car garage, totaling 3,252 square feet. Located in lush Weatherford, Texas just about 4 miles outside city limits, this property boasts of country living with its own water well and allowable horses & livestock. The kitchen is the heart of this home, and this one sets the pinnacle, ample enough to handle holiday gatherings with large families. The breakfast bar and food prep island with smaller sink while the main sink overlooks the living room, plenty of cabinets and counter space, and the stonework and kitchen design are amazing. The flooring in the major living areas is hand scraped oak flooring stained on site at the house (if early enough the buyers get to select color stain), solid wood entry doors and extended patio covers give plenty of shade to accommodate outdoor gatherings with a fireplace to keep warm in the winter, the patio ceilings are tongue & groove hardwood...stunning! The living room ceiling has crossed wooden beams, a fireplace, and sits off the kitchen and dining areas keeping everyone together and provides a great family setting. A Jack & Jill bath adjoins the 2nd & 3rd bedroom together and the 3rd bathroom sits just off the back door to the patio giving ideal access for those great outdoor gatherings. A perfect sized office study is right off the entry foyer keeping it nice & quiet from the main areas. The primary bedroom closet space is extensive with built in shoe rack & fulfills the most difficult criteria in a home search! An oversized 3 car split garage. Terrina Homes is a premier boutique builder in North Texas & it's high-end finishes are easily appreciated by touring our model home at 1000 Old Oaks Ct.