4
4
3319
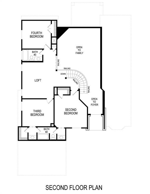
Property Description: MLS# 21065820 - Built by Harwood Homes - Nov 2025 completion! ~ Up to $25K in closing cost assistance for qualified buyers! See Sales for details. Discover this exceptional 4-bedroom, 4-bathroom home in Birdsong, Mansfield, TX, offering 3,319 sq ft of thoughtfully designed living space. The impressive two-story layout features a beautiful curved staircase, a spacious 2-car garage, and versatile spaces including a study, media room, and game room—perfect for work, relaxation, and entertainment. Designer-curated finishes add style and comfort throughout. Experience flexible living built for your lifestyle. Schedule your tour today and make this stunning home yours! Birchwood 2FSW - F , Birdsong , Mansfield, TX