2
2
2263
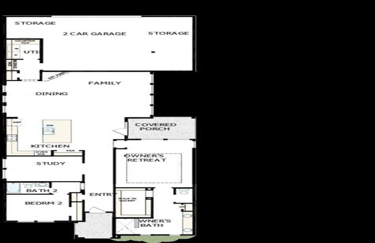
Property Description: Glimmer Ridge shines with modern elegance and natural beauty. Light-filled spaces, sleek finishes, and thoughtful design details come together to create a home that truly sparkles with sophistication. The updated kitchen features crisp white cabinets, sleek quartz countertops, and modern chrome fixtures, perfect for both everyday living and entertaining. A private study with enclosed French doors provides flexibility for a home office, hobby space, or quiet retreat. Wood floors flow throughout the main living areas and into the spacious owner’s retreat, where a luxurious super shower in the owner’s bath offers spa-like comfort. The 2.5-car garage is perfect for extra storage, hobbies, or keeping life beautifully organized. Ideally located near walking and biking trails and the award-winning Magnolia Lifestyle Center, this home combines modern elegance with an active, vibrant lifestyle.